efa Haustyp LEVEL 3
Fakten
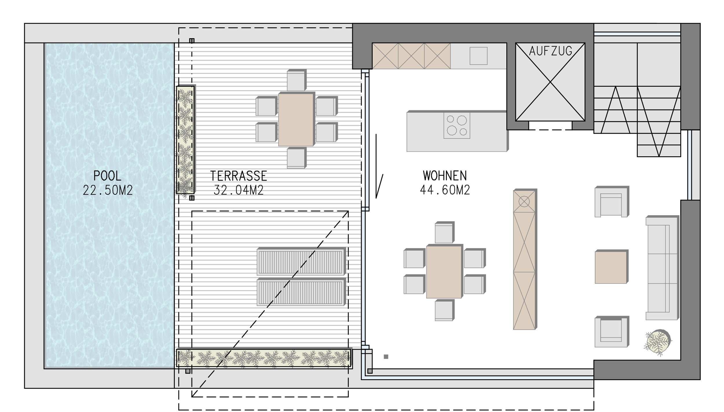
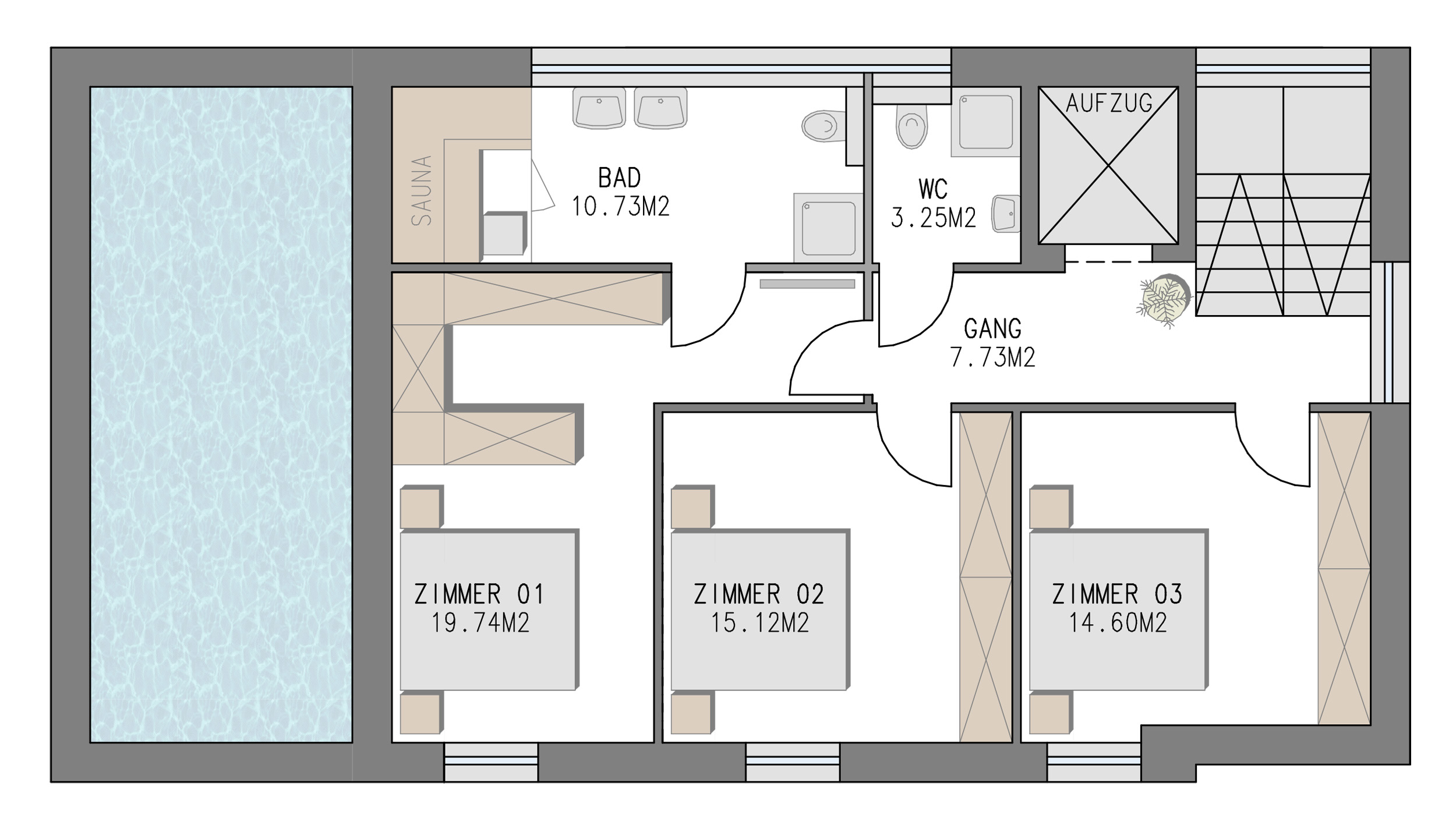
Grundrisse und Hausgrößen
Lage
Ihr Grundstück nach Wahl in der Steiermark im Umkreis von bis zu 60 Straßenkilometer um Graz unabhängig ob eben oder mit entsprechender Geländeneigung.
Denn das efa-Haus passt sich ihrem Grundstück an. Es kann auch in Hanglage errichtet werden, ohne dass aufwändige Geländeveränderungen notwendig sind. So kann ihr efa-Haus aufgeständert oder durch die stabile und feuchteunempfindliche Betonbauweise auch teilweise eingeschüttet werden.
Preise
Preise und Detailinformationen erhalten sie von Ofner Immobilien.
efa-Haus Exklusivvertrieb
Ihr Ansprechpartner:
Walter Ofner
03142 22892
office@ofner-immobilien.at
Information
Effizient, flexibel & attraktiv, dafür steht efa-haus
Wohnen auf 3 Ebenen mit Weitblick. Das Wohngeschoß und die großzügige Terrasse im 2. Obergeschoß sorgt für Penthouse-Feeling und offenes Wohnen. Das Konzept ist sowohl für den Hang als auch für die Ebene und im städtischen Umfeld geeignet und kann wahlweise mit oder ohne Pool umgesetzt werden.
Dieses efa-Haus eignet sich hervorragend für Familien mit mehreren Kindern die auf Platz und Luxus nicht verzichten wollen.
Das 1. Obergeschoß beherbergt zusätzlich zu 2 modernen Wohlfühl-Bädern auch noch drei großzügige Zimmer die in unterschiedlichen Größen nach Bauherrenwunsch zugeschnitten werden können.
Im Erdgeschoß befindet sich die offene Garage (für 2PKW ohne Pool und für 3 PKW mit Pool) mit angeschlossenem, überdachtem Zugang. Über Diesen gelangt man in einen großzügigen Empfangsraum dem ein eigener Garderobenraum angeschlossen ist. Für ausreichend Stauraum sorgt zusätzlich ein Kellerlager mit integriertem Technikbereich.
Für eine barrierefreie Erschließung über alle 3 Geschoß sorgt der hauseigene Aufzugsschacht vor. Dieser kann mit Aufzug bestückt oder zwischenzeitig je Geschoß als Abstellraum genutzt werden.
Das efa-Haus level3 kann in unterschiedlichsten Kombinationen als Einzel- oder Doppelhaus sowie auch mit Sattel- oder Flachdach errichtet werden.
Das Statik-Konzept des efa-Hauses beruht auf freitragenden Decken- sowie Dachkonstruktionen und kommt daher ohne tragende Zwischenwände aus. Dies ermöglicht eine völlig flexible Anordnung der Innenwände. All Ihre Wünsche und Bedürfnisse können bei der Planung berücksichtigt werden. Weiters besteht die Möglichkeit, die Trennwände auf massivem Estrich zu errichten. So sind auch spätere Grundrissänderungen möglich und Ihr Haus kann an geänderte Lebenssituationen angepasst werden.
Das efa-Haus ist ein Spiegel unseres Qualitätsanspruches. Nachhaltige Materialien, hochwertige Verarbeitung und wertbeständige Detailausbildungen fließen in die Massivbauweise aus mehrschaligen Beton-Fertig-Elementen mit Innenkerndämmung ein. Beton als natürlicher Baustoff weist hervorragende Eigenschaften wie Wärmespeicherfähigkeit, Feuchtigkeitsregulierung sowie Schall- und Brandschutz auf. Die enorme Lebensdauer in Kombination mit Stabilität und Stoßfestigkeit runden den perfekten Gesamteindruck ab.
Die Ausführung der Haustechnik erfolgt nach modernsten, ökologischen und ökonomischen Gesichtspunkten. So kommt für die Heizung und Warmwasserbereitung eine hochqualitative und effiziente Luftwärmepumpe zum Einsatz. Die wohlige Wärmeübertragung erfolgt über Fußbodenheizung. Optional ist auch eine kontrollierte Wohnraumlüftung mit Wärmerückgewinnung umsetzbar. Ein zusätzliches High-Light ist die auf Wunsch verfügbare Betonschalen-Klimatisierung: angenehme Kühlung im Sommer – wärmende Wandheizung im Winter.
Die hochqualitative Vorfertigung erfolgt großflächig im Werk und kann in kürzester Zeit geliefert und montiert werden. Somit ermöglicht das efa-System eine garantierte Bauzeit von nur drei Monaten vom Montagebeginn der Bodenplatte bis zur schlüsselfertigen Übergabe. (Eine entsprechende Vorlaufzeit für die Planung sowie für die Abwicklung des Behörden-Bewilligungsverfahrens ist zu berücksichtigen.)
Schnörkellose Geradlinigkeit sowie gefällige Proportionen und feine Baukörpergliederungen in Verbindung mit hochwertigen Detailausbildungen tragen dem hohen Designanspruch Rechnung. Lichtdurchflutete Wohnräume bieten einen neutralen Hintergrund für Ihren individuellen Wohnstil. Wahlweise kann die Oberfläche der Wände sowohl an der Fassade, als auch Iinen sichtbar bleiben oder mit Rollputz in Ihrer Traumfarbe versehen werden. Sogar Sonderoberflächen sind möglich. Das efa-Haus zeigt sich auf jeden Fall in außergewöhnlichem Design.
1. Fassade fertig
Komplette Gebäudehülle mit fertiger Fassadenoberfläche bestehend aus Fundamentplatte auf käuferseitigen Streifenfundamenten, gedämmte Fertigteilaußenwände, Dachkonstruktion mit Kaltdach und Folieneindeckung samt Dachrandverblechungen, Alu-Hauseingangstüre und alle Fenster und Außenverglasungen mit Niedrigenergiehaus-Kunststoff-Fensterprofil und 3-Scheibenisolierverglasung mit Außenfensterbänken.
2. Für Belag fertig
Fassade und innen fertig für das käuferseitige Belegen der Böden und Wänd, ohne Innentüren, Installationskomplettierung bestehend aus Elektro-, Heizungs- und Sanitärinstallation inkl. Luftwärmepumpenheizung, kompletter Fußbodenaufbau als Zementheizestrich inklusive Dämm- und Folienunterlagen, alle Zwischenwände als Trockenbauwände.
3. Schlüsselfertig
Für Belag fertig sowie zusätzlich Fertigstellung der Innenausstattung bestehend aus Bodenbelägen und Wandverfliesung, Innenmalerei und Innentüren, Fensterbänke und Elektrokomplettierung ohne Sanitärgegenstände und Armaturen. (ohne Aufschließung, ohne Außenanlagen und ohne Fundamentstreifen)
4. Aussen fertig
Schlüsselfertig mit optionaler Fertigstellung der Aufschließung und Außenanlagen je nach Grundstückssituation bestehend aus Streifenfundamenten, Erschließung und Aufschließung mit Strom-, Wasser-, Kanal- und sonstigen Versorgungsleitungen, Zufahrts- und Besucherparkplatzbefestigung sowie Gartengestaltung etc.
Carport
Lust auf mehr? Das efa-Haus kann durch zusätzliche Carport- und Überdachungs-Anbauten ergänzt werden. Diese Anbauten berücksichtigen selbstverständlich alle örtlichen Gegebenheiten und verstärken das individuelle Erscheinungsbild Ihres neuen Zuhauses.
Terrassendach
Auch für den Schutz vor stechender Sonne oder prasselndem Regen ist das efa-Haus gerüstet. Unter der standardmäßigen Terrassenüberdachung wird die Mittags-Hitze erträglich und sind Ihre Terrassenmöbel vor Witterungseinflüssen geschützt. So wird ein lauer Sommer-Regen zum willkommenen Naturschauspiel.
Im Gelände
Das efa-Haus passt sich Ihrem Grundstück an. Es kann auch in Hanglage errichtet werden, ohne dass aufwendige Geländeveränderungen notwendig sind. So kann Ihr efa-Haus durch die stabile und feuchtunempfindliche Betonbauweise teilweise eingeschüttet werden. Die nebenstehende Abbildung stellt dabei nur eine von vielen Möglichkeiten dar.
Dachkörper
Grundsätzlich ist das efa-Haus mit einem Flachdach in hinterlüfteter Bauweise (Kaltdachausbildung und Foliendachabdichtung) ausgestattet. Es kann jedoch je nach Wunsch und Bauvorschrift optional auch mit einem Satteldach und Dacheindeckung nach Wahl ausgeführt werden.
Das efa-Haus ist ein massives Fertigteilhaus bestehend aus Beton-Fertig-Elementen in mehrschaliger Bauweise mit effizienter, geschützter Innenkerndämmung (Niedrigst-Energiehaus-Standard, 18cm EPS).
Die Betonoberflächen der Fertigteilaußenwände können fassadenaußenseitig und auch rauminnenseitig sichtbar bleiben oder mittels Rollputz als Farbtraum erstrahlen. Installationen in den Außenwänden können bereits bei der Vorproduktion besonders elegant miteingegossen werden. Weitere Installationen werden vorzugsweise in den nicht tragenden Trockenbauzwischenwänden untergebracht. Beton als natürlicher Baustoff weist hervorragende Eigenschaften wie Wärmespeicherfähigkeit, Feuchtigkeitsregulierung sowie Schall- und Brandschutz auf. Die enorme Lebensdauer in Kombination mit Stabilität und Stoßfestigkeit runden den perfekten Gesamteindruck ab.
Struktur
Um Ihrem Heim ein unvergleichliches und außergewöhnliches Aussehen zu geben, können Sie auf einen Rollputz verzichten und die Betonoberflächen gegen Zuzahlung mit einer besonderen Struktur versehen. Echte Blickfänge sind zum Beispiel sandgestrahlte, gestockte, geprägte oder mit „Besenstrich“ ausgeführte Wände. Lassen Sie Ihrer Fantasie hinsichtlich unterschiedlicher Prägungen freien Lauf.
Färbungen
Sogar Betoneinfärbungen sind möglich! Die Farbskala ist breit gefächert, wobei hier insbesondere hinsichtlich Farbgenauigkeit auf die üblichen, der Natürlichkeit des Materials entsprechenden, Farbabweichungen hingewiesen wird! So erhält dieser Naturbaustoff zusätzlichen Charme.
